RÉFÉRENCES
Client : Gestionbat, Lieu : Nantes, Date : 2017
Le scanner au service du foncier
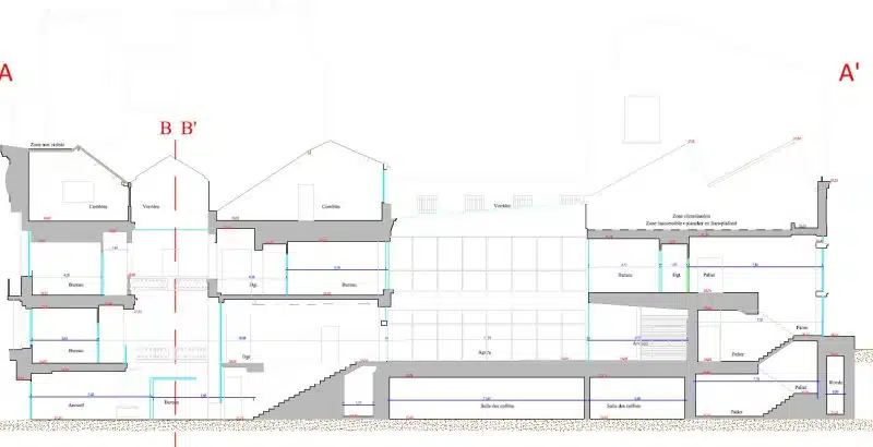
En plein cœur de Nantes, non loin de la place Graslin, un relevé complet a été réalisé par nos soins. Afin d’étudier l’emprise d’un bâtiment dans son environnement, nous utilisons le scanner 3D pour bien déterminer l’emprise foncière du bâtiment.
Le nuage de point 3D nous permet de dessiner sur plan les intérieurs, du rez-de-chaussée aux combles, les façades, les héberges, et en plus de dessiner des coupes avec projection, pour plus de réalisme. Cela permet de mieux se rendre compte de l’état architectural de l’édifice et de mieux interpréter les futurs changements.
Maître d’ouvrage : Gestionbat
Maître d’œuvre : Agence Braun
Prestation : Scanning laser 3D, plans d’intérieurs, façades, coupes, toiture, plan périmétrique, calcul des surfaces
